中古住宅 酒田市宮内字六ツ新田
投稿日:2026/01/21
最終更新日時 : 2026/01/30
【物件NO.R7-10】 【土地・建物】
| 価 格 | 500 | 万(売買) | |||||
| 所 在 地 | 酒田市宮内字六ツ新田51 | ||||||
| 土地面積 | 640.91 | ㎡ | ( | 193.87 | 坪) | ||
| 建物面積 | 1F | 126.38 | ㎡ | ( | 坪) | ||
| 2F | 33.00 | ㎡ | ( | 坪) | |||
| 合計 | 159.38 | ㎡ | ( | 坪) | |||
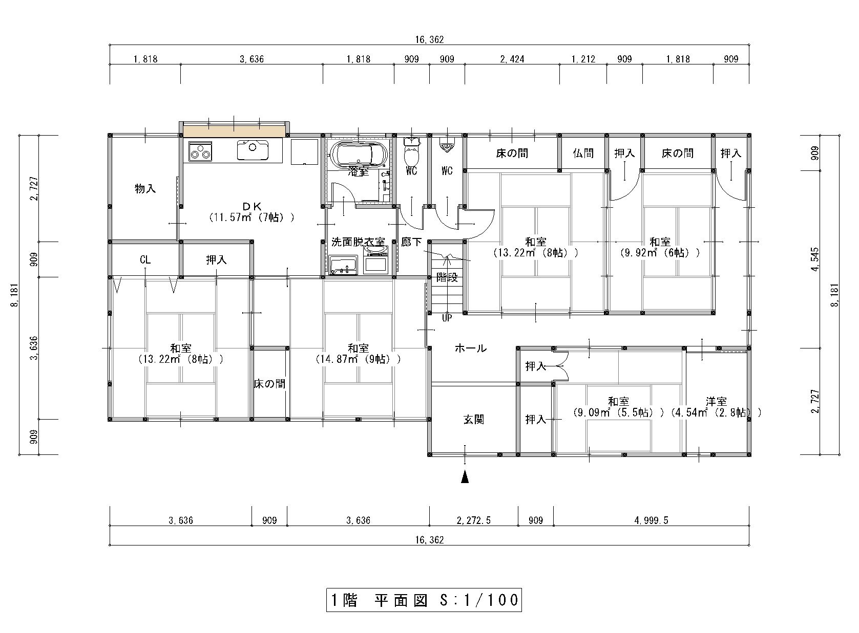
| 建 築 年 | 昭和47年 | 間 取 り | 7DK+納戸 | ||||
| 構 造 | 木造亜鉛メッキ鋼板・瓦葺2階建て | 駐 車 場 | 有 | ||||
| 現 況 | 空家 | ||||||
| リフォーム年月 | |||||||
| 都市計画 | 都市計画区域外 | 建ぺい率 | % | ||||
| 用途地域 | なし | 容 積 率 | % | ||||
| 接道状況 | 北側幅員5m(公道)、西側幅員6m(公道)に接する | 地 目 | 宅地 | ||||
| 学 区 | 鳥海 | 小学校 | 鳥海八幡 | 中学校 | |||
| 引 渡 日 | 相談 | ||||||
| 主要施設等 への距離 |
最寄り駅 | 7.4km | 病 院 | km | |||
| 消防署・分署 | km | 保 育 園 | m | ||||
| 市役所・支所 | km | スーパー | km | ||||
| 警察署・駐在署 | km | コンビニ | km | ||||
| 設 備 | 電 気 | 東北電力 | 上 水 道 | あり | |||
| ガ ス | LPガス | 下 水 道 | 合併浄化槽 | ||||
| 備 考 | 倉庫 木造瓦葺2階建 1F 79.32m 2F 39.66㎡(平成11年12月新築) | ||||||
| 担当業者 | タカハシ建装(有) 0234-22-5525 | ||||||
【現況写真】
![]() |
【間取り図】
![]() |
![]() |
【地図】
山形県酒田市宮内六ツ新田51
| 情報登録日又は直前の更新日 : | 2025 | 年 | 11 | 月 | 10 | 日 |
| 次回の更新予定日 : | 年 | 月 | 日 |



