中古住宅 酒田市本楯字広面
投稿日:2025/11/10
最終更新日時 : 2026/01/23
【物件NO.R7-10】 【土地・建物】
| 価 格 | 60 | 万(売買) | |||||
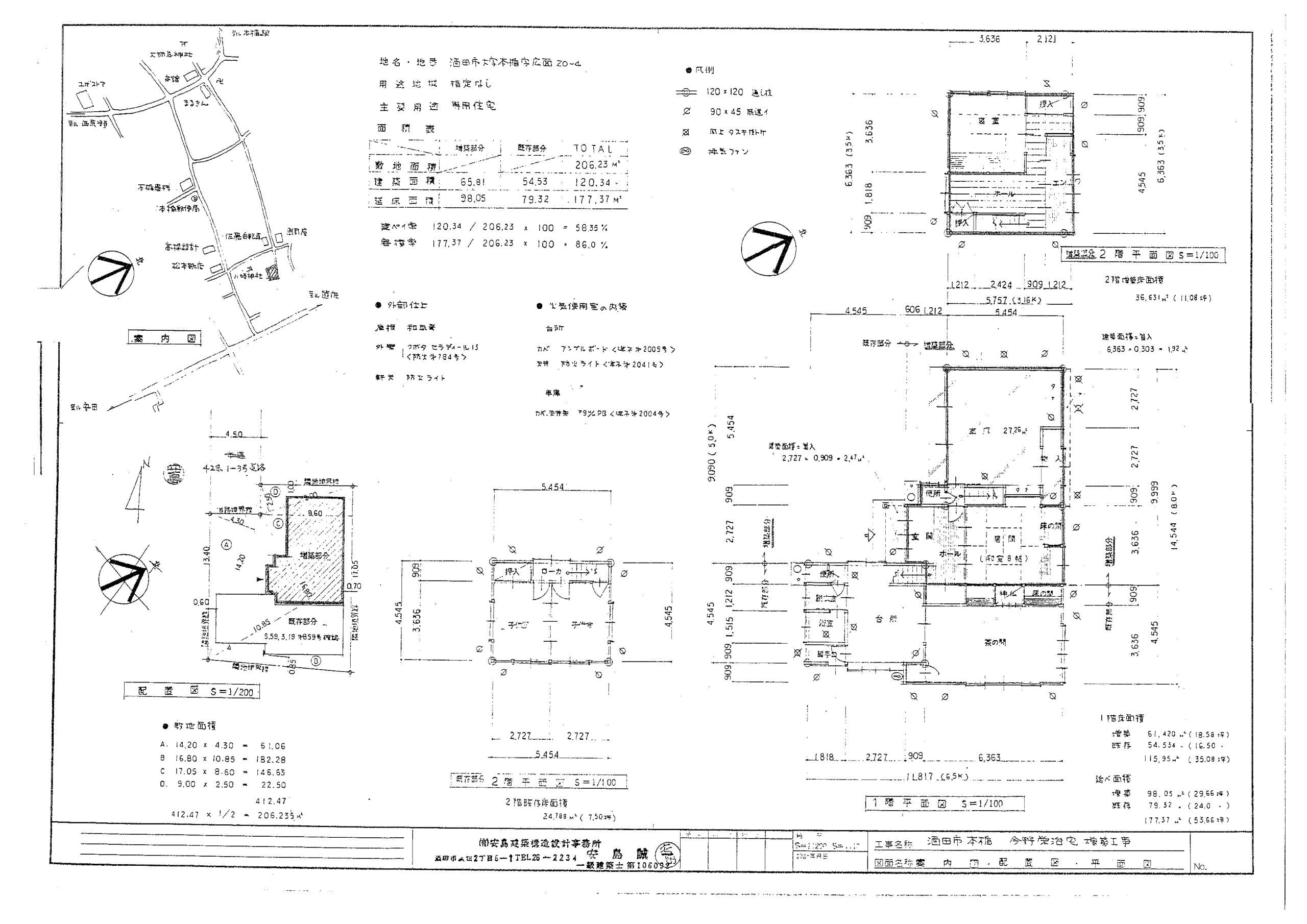
| 所 在 地 | 酒田市本楯字広面20-4 | ||||||
| 土地面積 | 263.37 | ㎡ | ( | 79.66 | 坪) | ||
| 建物面積 | 1F | 118.33 | ㎡ | ( | 35.86 | 坪) | |
| 2F | 61.31 | ㎡ | ( | 18.58 | 坪) | ||
| 合計 | 138.63 | ㎡ | ( | 54.44 | 坪) | ||
| 建 築 年 | 昭和35年 | 間 取 り | 6K | ||||
| 構 造 | 木造鋼瓦葺2階建て | 駐 車 場 | 車庫2台分 | ||||
| 現 況 | 空き家 | ||||||
| リフォーム年月 | |||||||
| 都市計画 | 市街化調整区域 | 建ぺい率 | 70 | % | |||
| 用途地域 | 容 積 率 | 200 | % | ||||
| 接道状況 | 42条1-3号道路(幅員4m) | 地 目 | 宅地 | ||||
| 学 区 | 鳥海 | 小学校 | 鳥海八幡 | 中学校 | |||
| 引 渡 日 | 即日 | ||||||
| 主要施設等 への距離 |
最寄り駅 | 990 | m | 病 院 | 2.5 | km | |
| 消防署・分署 | 4.3 | km | 保 育 園 | 420 | m | ||
| 市役所・支所 | 4.3 | km | スーパー | 4.1 | km | ||
| 警察署・駐在署 | 4.2 | km | コンビニ | 3.2 | km | ||
| 設 備 | 電 気 | 東北電力 | 上 水 道 | あり | |||
| ガ ス | あり | 下 水 道 | 引込あり | ||||
| 備 考 | 汲み取り式トイレ | ||||||
| 担当業者 | タカハシ建装(有) 0234-22-5525 | ||||||
【現況写真】

【間取り図】

図面と現況が異なる場合は現況を優先いたします。
【地図】
山形県酒田市本楯字広面20-4
| 情報登録日又は直前の更新日 : | 2025 | 年 | 11 | 月 | 10 | 日 |
| 次回の更新予定日 : | 年 | 月 | 日 |
