酒田市船場町【5DK】中古住宅
投稿日:2026/01/28
最終更新日時 : 2026/01/29
【物件NO.R8-2】【土地・建物】
| 価 格 | 298 | 万円(売買) | |||||
| 所 在 地 | 酒田市船場町1丁目3-29 | ||||||
| 土地面積 | 102.80 ㎡( 約31 坪) | ||||||
| 建物面積 | 1階 65.41㎡ | ||||||
| 2階 51.32㎡ | |||||||
| 延床面積 116.73㎡ | |||||||
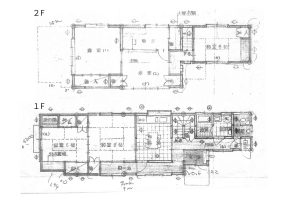
| 建 築 年 | 1985年新築 | 間 取 り | 5DK | ||||
| 構 造 | 木造かわらぶき二階建て | 駐 車 場 | 駐車場無し | ||||
| 現 況 | 空 | ||||||
| リフォーム年月 | |||||||
| 都市計画 | 市街化区域 | 建ぺい率 | 80% | ||||
| 用途地域 | 容 積 率 | 400% | |||||
| 接道状況 |
|
地 目 | 宅地 | ||||
| 学 区 | 酒田市琢成小学校 | 酒田市立第一中学校 | |||||
| 引 渡 日 | 相 談 | ||||||
| 主要施設等 への距離 |
最寄り駅 | 酒田駅 | 中学校 | 酒田市立第一中学校まで約2km | |||
| 小学校 | 酒田市立琢成小学校まで約4km | ||||||
| 市役所・支所 | 酒田市役所 | スーパー | |||||
| 警察署・駐在署 | 酒田警察署 | コンビニ | |||||
| 設 備 | 電 気 | 引込有り | 上 水 道 | 引込有り | |||
| ガ ス | 下 水 道 | 引込有り | |||||
| 備 考 | 現状有姿お引渡し。間取り図は現況を優先します。 | ||||||
| 担当業者 | (株)タイヨウ開発 0234-24-1355 | ||||||
【現況写真】
![]() ![]() ![]() ![]() ![]() ![]() ![]() ![]() ![]() ![]() ![]() ![]() |
||
【間取り図】
図面と現況が異なる場合は現況を優先いたします。
【地図】
山形県酒田市船場町1丁目3-29












